Trilocale in vendita

Alfonsine, Via Mazzini
€ 70.000
3 locali 3 locali
57 Mq 57 Mq
1 bagno 1 bagno

Trilocale in vendita

Alfonsine, Via Mazzini

Descrizione annuncio

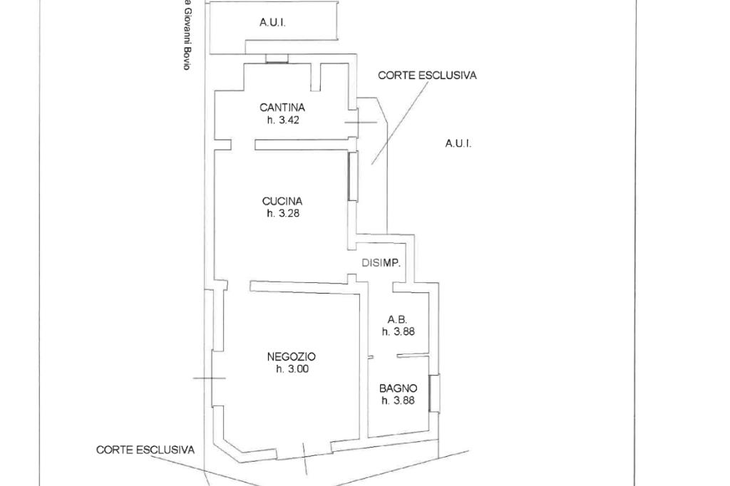
ALFONSINE - VIA GIUSEPPE MAZZINI

Proponiamo in vendita locale commerciale caratterizzato da ambienti ampi e ben distribuiti, ideale per diverse tipologie di attività.

L’ingresso si apre su un luminoso locale principale fronte strada, valorizzato da una grande vetrina che garantisce ottima visibilità e un piacevole apporto di luce naturale. Gli spazi interni proseguono con una seconda ampia stanza, facilmente organizzabile in base alle proprie esigenze operative, oltre a un ulteriore ambiente di dimensioni più contenute, perfetto come ufficio, deposito o area di servizio.

Un comodo disimpegno conduce al bagno finestrato.

La disposizione interna risulta funzionale e versatile, con soffitti alti e ambienti regolari che permettono una facile personalizzazione. Il locale necessita di interventi di riammodernamento, offrendo così l’opportunità di modellare gli spazi secondo la propria attività e il proprio stile.

Soluzione interessante per chi è alla ricerca di un immobile con buona visibilità e ottimo potenziale di valorizzazione.

Mostra tutto

Nelle vicinanze

Trasporto pubblico Trasporto pubblico
Alfonsine
Alfonsine
820 m
Scuole Scuole
Scuola Elementare Giacomo Matteotti
130 m
Scuola Media Alfredo Oriani
560 m
Farmacia Farmacia
Antica Farmacia Lugaresi
450 m
Supermercati Supermercati
Conad
80 m
Coop
510 m
Negozi Negozi
Forno
390 m
Conad
490 m
Ristoranti Ristoranti
Stella
390 m
Al gallo
490 m
Cantina
520 m
Ristorante
990 m
Le Spighe - Non solo Piadine
2,5 Km
Mostra tutto

Caratteristiche

Rif.:
61184572
Piano:
Terra
Arredamento:
Assente
Condizionamento:
Assente
Ascensore:
No
Riscaldamento:
Autonomo
Mostra tutto
Prezzo Prezzo
€ 70.000
Rata mutuo Rata mutuo
€ 332 / mese
Spese annue Spese annue
€ 0
Proponi il tuo prezzoProponi il tuo prezzo

Classe Energetica

F
F
F
F
F
F
F
F
F
Anno di costruzione:
1960
Riscaldamento:
Autonomo
Tipo impianto:
A radiatori
Tipo alimentazione:
Metano

Ti interessa visionare l'immobile?

Fissa un appuntamento  Fissa un appuntamento

Richiedi informazioni

Clicca su Leggi per aprire l'informativa
* Questi campi sono obbligatori

Calcola il tuo mutuo

Semplice e senza impegno
Anticipo

( % )
Mutuo

( % )

pochi semplici passi

inserisci i tuoi dati
Questionario completato
Grazie per aver richiesto un appuntamento senza impegno con un nostro Consulente del Credito e Assicurativo.

Hai inserito correttamente tutti i dati necessari e a breve riceverai una e-mail con un link da convalidare per inviare i tuoi dati.
Affiliato
Studio Alfa Srl
Via Giacomo Matteotti, 51 48011 Alfonsine (RA)

Il nostro staff


  • Sara Dell'Aversano Orabona
    Coordinatrice

  • Gianni D'Antuono
    Collaboratore

  • Federico Pozzi
    Affiliato
Via Giacomo Matteotti, 51 48011 Alfonsine (RA)
Zona: Alfonsine - Fusignano e limitrofi
Mostra su mappa
Orari: Dal lunedì al venerdi dalle ore 9 alle 13 e dalle 15 alle 19. Sabato dalle ore 9 alle ore 13, pomeriggio su appuntamento.
Affiliato
Studio Alfa Srl
Via Giacomo Matteotti, 51 48011 Alfonsine (RA)

2026 Tecnocasa Franchising S.p.A. - P. IVA 08365160152 - Via Monte Bianco 60/A 20089 Rozzano (MI). Ogni agenzia ha un proprio titolare ed è autonoma. Privacy policy | Policy utilizzo | Cookie policy