Villa singola in vendita

Alfonsine, Via Tre Pertiche
€ 140.000
5 locali 5 locali
267 Mq 267 Mq
2 bagni 2 bagni

Villa singola in vendita

Alfonsine, Via Tre Pertiche

Descrizione annuncio

ALFONSINE - VIA TRE PERTICHE

Proponiamo in vendita un ampio immobile immerso nel verde, ideale per chi desidera vivere in un contesto tranquillo, riservato e circondato dalla natura, senza rinunciare a spazi generosi e ben distribuiti.

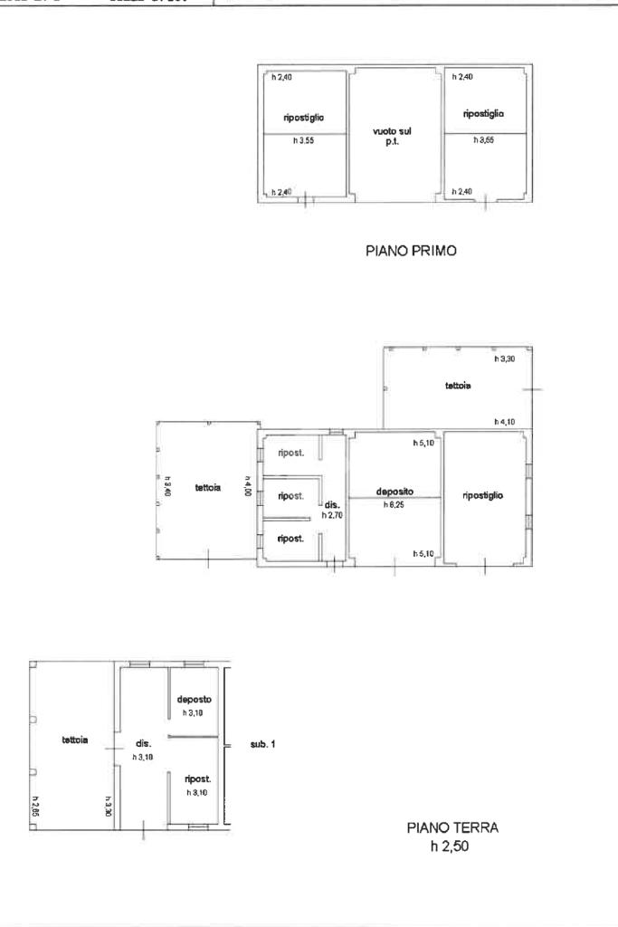
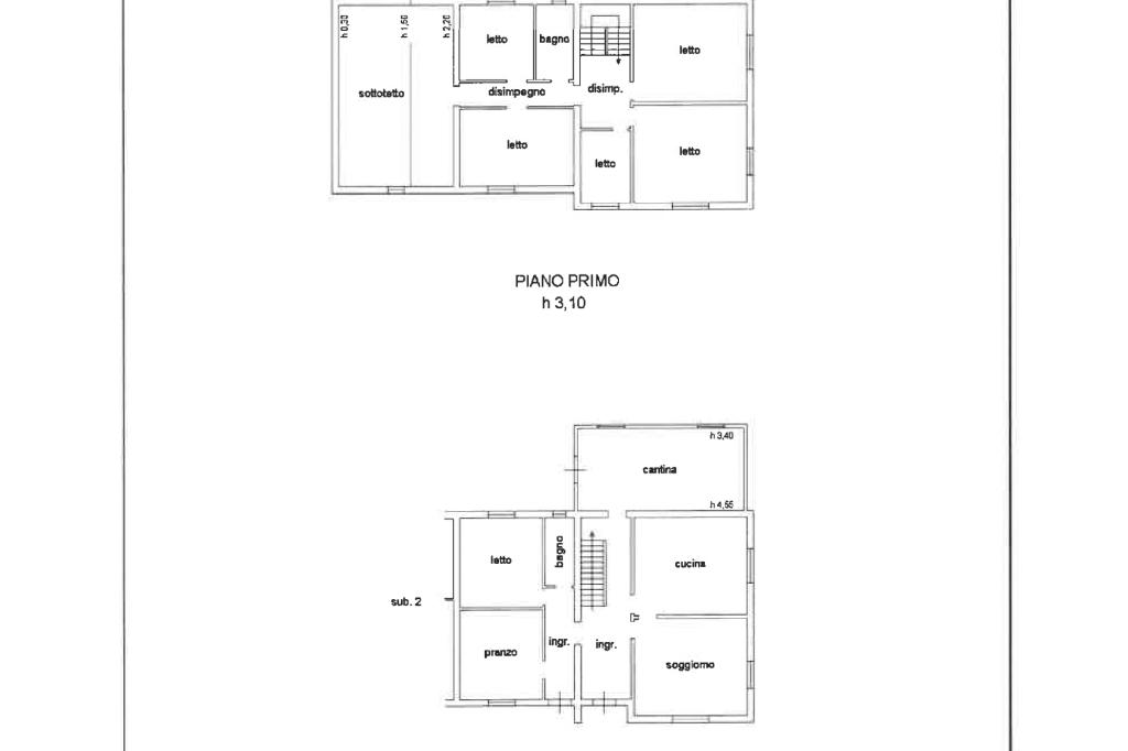
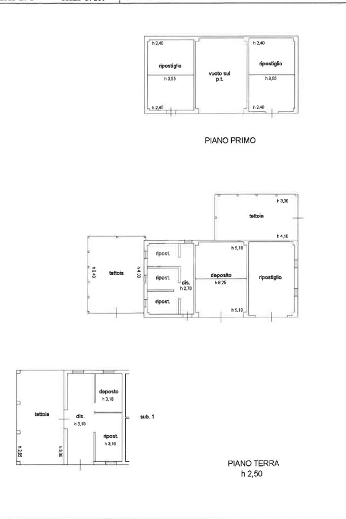
L’abitazione si sviluppa su due livelli. Al piano terra troviamo una grande cucina abitabile con camino, perfetta per creare un’atmosfera calda e conviviale, un accogliente soggiorno, una comoda lavanderia, un’ulteriore stanza versatile da adibire a studio, camera ospiti o sala hobby, un bagno finestrato con box doccia e un’ampia cantina.

Salendo al primo piano si sviluppa la zona notte, composta da cinque camere da letto, di cui tre matrimoniali e due singole, ideali per una famiglia numerosa o per chi necessita di ambienti aggiuntivi da personalizzare secondo le proprie esigenze. Il piano è completato da un bagno finestrato con vasca e da un pratico sottotetto, perfetto come ripostiglio o locale di sgombero.

La proprietà dispone di riscaldamento autonomo, ampio garage e, all’esterno, di un grande deposito ben suddiviso con spazi funzionali e ben organizzati.

A completare il tutto, ampi spazi verdi che circondano l’immobile, offrendo privacy, tranquillità e la possibilità di vivere pienamente gli ambienti esterni.

Soluzione ideale per chi è alla ricerca di comfort, indipendenza e metrature importanti, in un contesto naturale e rilassante.

Mostra tutto

Nelle vicinanze

Trasporto pubblico Trasporto pubblico
La Comacchiesa
La Comacchiesa
1,9 Km
Molinetto
Molinetto
2,1 Km
Farmacia Farmacia
Farmacia Le Strine
2,5 Km
Mostra tutto

Caratteristiche

Rif.:
61184909
Piano:
1 di 1 (Piano su più livelli)
Box:
1
Posti auto:
1
Camere da letto:
5
Arredamento:
Parziale
Mostra tutto
Prezzo Prezzo
€ 140.000
Rata mutuo Rata mutuo
€ 665 / mese
Spese annue Spese annue
€ 0
Proponi il tuo prezzoProponi il tuo prezzo

Classe Energetica

F
F
F
F
F
F
F
F
F
Anno di costruzione:
1960
Riscaldamento:
Autonomo
Tipo impianto:
A radiatori
Tipo alimentazione:
Metano

Ti interessa visionare l'immobile?

Fissa un appuntamento  Fissa un appuntamento

Richiedi informazioni

Clicca su Leggi per aprire l'informativa
* Questi campi sono obbligatori

Calcola il tuo mutuo

Semplice e senza impegno
Anticipo

( % )
Mutuo

( % )

pochi semplici passi

inserisci i tuoi dati
Questionario completato
Grazie per aver richiesto un appuntamento senza impegno con un nostro Consulente del Credito e Assicurativo.

Hai inserito correttamente tutti i dati necessari e a breve riceverai una e-mail con un link da convalidare per inviare i tuoi dati.
Affiliato
Studio Alfa Srl
Via Giacomo Matteotti, 51 48011 Alfonsine (RA)

Il nostro staff


  • Sara Dell'Aversano Orabona
    Coordinatrice

  • Gianni D'Antuono
    Collaboratore

  • Federico Pozzi
    Affiliato
Via Giacomo Matteotti, 51 48011 Alfonsine (RA)
Zona: Alfonsine - Fusignano e limitrofi
Mostra su mappa
Orari: Dal lunedì al venerdi dalle ore 9 alle 13 e dalle 15 alle 19. Sabato dalle ore 9 alle ore 13, pomeriggio su appuntamento.
Affiliato
Studio Alfa Srl
Via Giacomo Matteotti, 51 48011 Alfonsine (RA)

2026 Tecnocasa Franchising S.p.A. - P. IVA 08365160152 - Via Monte Bianco 60/A 20089 Rozzano (MI). Ogni agenzia ha un proprio titolare ed è autonoma. Privacy policy | Policy utilizzo | Cookie policy