Villa singola in vendita

Ravenna, Via Fiumetto - Sant'Antonio
€ 439.000
5 locali 5 locali
311 Mq 311 Mq
2 bagni 2 bagni

Villa singola in vendita

Ravenna, Via Fiumetto - Sant'Antonio

Descrizione annuncio

SANT'ANTONIO- VIA FIUMETTO

In zona tranquilla, proponiamo in vendita casa singola circondata da un ampio giardino privato, dotata di orto, due box auto spaziosi e una comoda tavernetta, perfetta per momenti di relax o convivialità.

L'immobile è composto da due appartamenti, ideale per due nuclei familiari, oppure facilmente riunificabile in un'unica ampia abitazione.

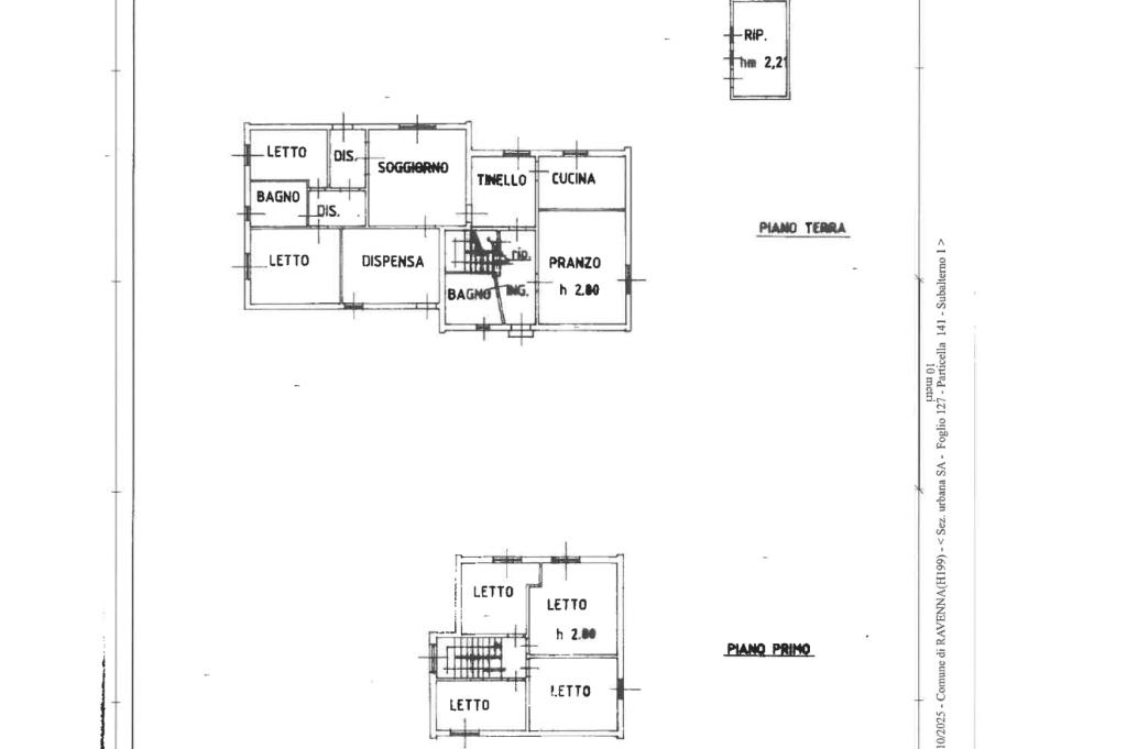
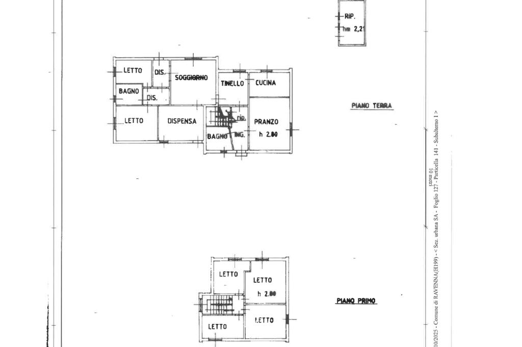
Primo appartamento (tutto su un unico livello – piano terra):

Ingresso su soggiorno luminoso

Cucina separata

Bagno finestrato con box doccia

Due camere da letto: una matrimoniale e una singola

Secondo appartamento (su due livelli):

Piano terra:

Ingresso su soggiorno (attualmente adibito a camera da letto)

Cucina separata

Ripostiglio

Bagno finestrato con box doccia

Primo piano:

Tre camere da letto spaziose

Esternamente, la proprietà si completa con:
Ampio giardino
Orto per gli amanti del verde
Due box auto
Tavernetta ideale per cene, hobby o spazio relax

Soluzione versatile, perfetta per famiglie numerose, genitori/figli o chi desidera ampi spazi abitativi in un contesto indipendente.

Mostra tutto

Nelle vicinanze

Trasporto pubblico Trasporto pubblico
Bassette - Hera
Bassette - Hera
2,3 Km
Bivio Le Bassette
Bivio Le Bassette
2,4 Km
Ricariche auto elettriche Ricariche auto elettriche
CONAD Ravenna Grandi | EnelX
2,5 Km
Scuole Scuole
Università di Bologna - Agraria
2,5 Km
Università di Bologna - Scienze Ambientali
2,6 Km
Farmacia Farmacia
Farmacia
3,0 Km
Supermercati Supermercati
Dpiù
2,4 Km
Conad
2,5 Km
Negozi Negozi
Forno Ragazzini
2,2 Km
Bar Bar
Bar Cà Bosco
2,8 Km
Caffè Mattei
2,8 Km
Ristoranti Ristoranti
Traffic
2,5 Km
Ristoranti
2,8 Km
Mostra tutto

Caratteristiche

Rif.:
61165441
Piano:
1 di 1 (Piano su più livelli)
Box:
2
Posti auto:
2
Arredamento:
Parziale
Condizionamento:
Assente
Mostra tutto
Prezzo Prezzo
€ 439.000
Rata mutuo Rata mutuo
€ 2.050 / mese
Spese annue Spese annue
€ 0
Proponi il tuo prezzoProponi il tuo prezzo

Classe Energetica

E
E
E
E
E
E
E
E
E
Anno di costruzione:
1980
Riscaldamento:
Autonomo
Tipo impianto:
A radiatori
Tipo alimentazione:
Metano

Ti interessa visionare l'immobile?

Fissa un appuntamento  Fissa un appuntamento

Richiedi informazioni

Clicca su Leggi per aprire l'informativa
* Questi campi sono obbligatori

Calcola il tuo mutuo

Semplice e senza impegno
Anticipo

( % )
Mutuo

( % )

pochi semplici passi

inserisci i tuoi dati
Questionario completato
Grazie per aver richiesto un appuntamento senza impegno con un nostro Consulente del Credito e Assicurativo.

Hai inserito correttamente tutti i dati necessari e a breve riceverai una e-mail con un link da convalidare per inviare i tuoi dati.
Affiliato
Studio Alfa Srl
Via Giacomo Matteotti, 51 48011 Alfonsine (RA)

Il nostro staff


  • Sara Dell'Aversano Orabona
    Coordinatrice

  • Gianni D'Antuono
    Collaboratore

  • Federico Pozzi
    Affiliato
Via Giacomo Matteotti, 51 48011 Alfonsine (RA)
Zona: Alfonsine - Fusignano e limitrofi
Mostra su mappa
Orari: Dal lunedì al venerdi dalle ore 9 alle 13 e dalle 15 alle 19. Sabato dalle ore 9 alle ore 13, pomeriggio su appuntamento.
Affiliato
Studio Alfa Srl
Via Giacomo Matteotti, 51 48011 Alfonsine (RA)

2026 Tecnocasa Franchising S.p.A. - P. IVA 08365160152 - Via Monte Bianco 60/A 20089 Rozzano (MI). Ogni agenzia ha un proprio titolare ed è autonoma. Privacy policy | Policy utilizzo | Cookie policy